Porzione di bifamiliare in vendita

Martinengo, Via locatelli
€ 150.000
4 locali 4 locali
142 Mq 142 Mq
1 bagno 1 bagno

Porzione di bifamiliare in vendita

Martinengo, Via locatelli

Descrizione annuncio

MARTINENGO:

In zona residenziale tranquilla e molto vicina al centro storico e ai principali servizi (scuole, banche, bar, ecc...) della città, proponiamo in vendita porzione di villa bifamiliare totalmente indipendente e senza spese.

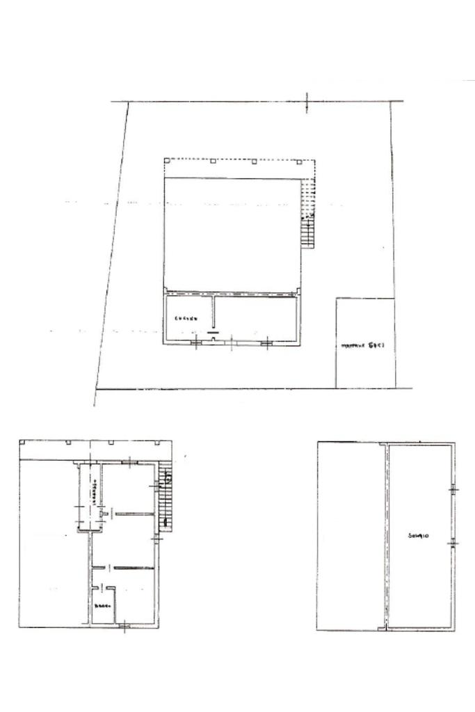
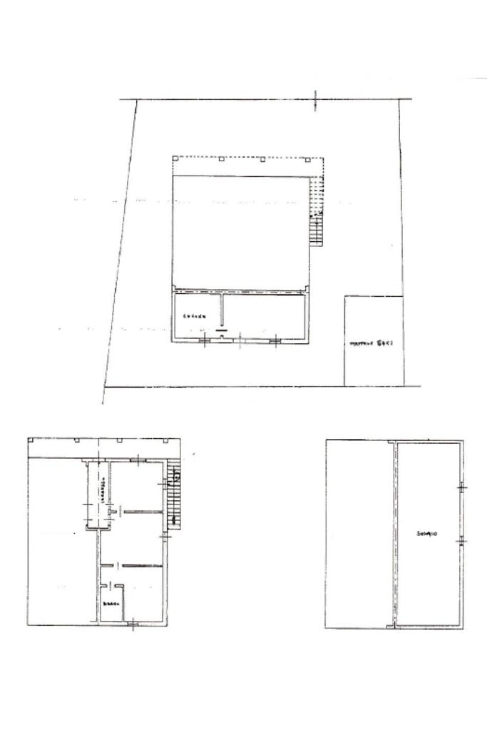
La soluzione si sviluppa su due livelli ed e completa di box privato esterno con annessa comoda lavanderia.

Ci accoglie grande un cortile esclusivo e per una parte coperto che ci accompagna all'ingresso al piano terra dove troviamo una cucina abitabile, una piccola zona living e una camera matrimoniale. Al piano primo, accessibile tramite scala esterna, troviamo un ampio soggiorno con annesso cucinotto, una grande camera matrimoniale, una camera doppia e un bagno con vasca.

Completa la proprietà un sottotetto non abitabile comodo come ripostiglio.

Mostra tutto

Nelle vicinanze

Trasporto pubblico Trasporto pubblico
Trasporto pubblico
50 m
Ghisalba - Via Provinciale, 41
Ghisalba - Via Provinciale, 41
2,5 Km
Scuole Scuole
Congregazione Della Sacra Famiglia Di Martinengo
840 m
S.M.S "Cagnola" Ghisalba
2,6 Km
Farmacia Farmacia
Farmacia
20 m
Supermercati Supermercati
Famila
510 m
Conad
2,4 Km
Ristoranti Ristoranti
Agriturismo Camporosso
2,1 Km
Mostra tutto

Caratteristiche

Rif.:
61110210
Piano:
Su più livelli di 2
Totale piani:
2
Box:
1
Balconi:
1
Camere da letto:
4
Mostra tutto
Prezzo Prezzo
€ 150.000
Rata mutuo Rata mutuo
€ 693 / mese
Spese annue Spese annue
€ 0
Proponi il tuo prezzoProponi il tuo prezzo
Immobile valutato con TecnoValore

Classe Energetica

G
G
G
G
G
G
G
G
G
EP globale non rinnovabile:
250.00 kW h/m² anno
EP globale rinnovabile:
0.50 kW h/m² anno
EP invernale del fabbricato:
EP estiva del fabbricato:
Anno di costruzione:
1960
Riscaldamento:
Autonomo
Tipo impianto:
A radiatori
Tipo alimentazione:
Metano

Ti interessa visionare l'immobile?

Fissa un appuntamento  Fissa un appuntamento

Richiedi informazioni

* Questi campi sono obbligatori

Calcola il tuo mutuo

Semplice e senza impegno
Anticipo

( % )
Mutuo

( % )

pochi semplici passi

inserisci i tuoi dati
Questionario completato
Grazie per aver richiesto un appuntamento senza impegno con un nostro Consulente del Credito e Assicurativo.

Hai inserito correttamente tutti i dati necessari e a breve riceverai una e-mail con un link da convalidare per inviare i tuoi dati.
Affiliato
Tecnomartinengo Srl
Via Locatelli, 64 24057 Martinengo (BG)

Il nostro staff


  • Cassandra Bianchessi
    Affiliata

  • Eleonora Cristiani
    Responsabile

  • Salvatore Dispensa
    Coordinatore

  • Laura Guzzi
    Coordinatrice

  • Sara Pedroni
    Collaboratrice
Via Locatelli, 64 24057 Martinengo (BG)
Zona: Martinengo-Ghisalba
Mostra su mappa
Affiliato
Tecnomartinengo Srl
Via Locatelli, 64 24057 Martinengo (BG)

2025 Tecnocasa Franchising S.p.A. - P. IVA 08365160152 - Via Monte Bianco 60/A 20089 Rozzano (MI). Ogni agenzia ha un proprio titolare ed è autonoma. Privacy policy | Policy utilizzo | Cookie policy