Porzione di bifamiliare in vendita

Martinengo, Via A. Locatelli
€ 289.000
4 locali 4 locali
230 Mq 230 Mq
2 bagni 2 bagni

Porzione di bifamiliare in vendita

Martinengo, Via A. Locatelli

Descrizione annuncio

MARTINENGO:

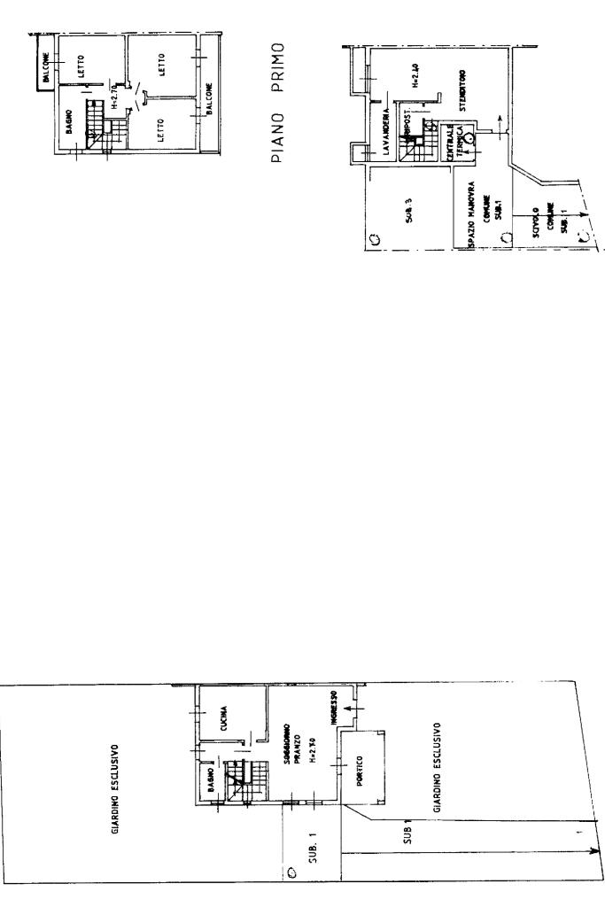
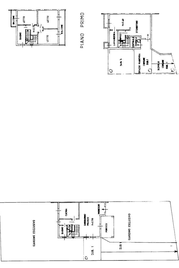
In zona signorile e ricercata proponiamo porzione di bifamiliare libera su tre lati completamente indipendente e dalle ampie metrature.

Attraversando il giardino frontale di proprietà e varcando il portoncino blindato ci accoglie il luminoso soggiorno esposto a sud con sala da pranzo e angolo relax.

Proseguendo troviamo la cucina abitabile con accesso diretto al grande giardino retrostante.

Bagno di servizio con possibilità di completarlo con una doccia già predisposta.

Al piano primo troviamo la zona notte composta da due camere matrimoniali e una camera doppia, tutte con balcone. Bagno padronale con vasca.

Attraverso delle comode scale interne raggiungiamo il piano interrato dov'è presente una comoda taverna con lavanderia, ideale per passare del tempo con amici e famiglia.

Locale caldaia e box doppio in larghezza.

L'immobile è provvisto di ante in alluminio regolabili, serramenti a vasistas con doppio vetro, zanzariere a carrarmato, aria condizionata, addolcitore, pompa di rilancio per lo scarico della cucina.

IMMOBILIE LIBERO DA SETTEMBRE 2026!!!

Mostra tutto

Nelle vicinanze

Trasporto pubblico Trasporto pubblico
Trasporto pubblico
50 m
Ghisalba - Via Provinciale, 41
Ghisalba - Via Provinciale, 41
2,5 Km
Scuole Scuole
Congregazione Della Sacra Famiglia Di Martinengo
840 m
S.M.S "Cagnola" Ghisalba
2,6 Km
Farmacia Farmacia
Farmacia
20 m
Supermercati Supermercati
Famila
510 m
Conad
2,4 Km
Ristoranti Ristoranti
Agriturismo Camporosso
2,1 Km
Mostra tutto

Caratteristiche

Rif.:
61103573
Piano:
Su più livelli di 2
Totale piani:
2
Box:
1
Balconi:
2
Camere da letto:
3
Mostra tutto
Prezzo Prezzo
€ 289.000
Rata mutuo Rata mutuo
€ 1.362 / mese
Spese annue Spese annue
€ 0
Proponi il tuo prezzoProponi il tuo prezzo

Classe Energetica

F
F
F
F
F
F
F
F
F
EP invernale del fabbricato:
EP estiva del fabbricato:
Anno di costruzione:
1995
Riscaldamento:
Autonomo
Tipo impianto:
A radiatori
Tipo alimentazione:
Metano

Ti interessa visionare l'immobile?

Fissa un appuntamento  Fissa un appuntamento

Richiedi informazioni

Clicca su Leggi per aprire l'informativa
* Questi campi sono obbligatori

Calcola il tuo mutuo

Semplice e senza impegno
Anticipo

( % )
Mutuo

( % )

pochi semplici passi

inserisci i tuoi dati
Questionario completato
Grazie per aver richiesto un appuntamento senza impegno con un nostro Consulente del Credito e Assicurativo.

Hai inserito correttamente tutti i dati necessari e a breve riceverai una e-mail con un link da convalidare per inviare i tuoi dati.
Affiliato
Tecnomartinengo Srl
Via Locatelli, 64 24057 Martinengo (BG)

Il nostro staff


  • Cassandra Bianchessi
    Affiliata

  • Eleonora Cristiani
    Responsabile

  • Laura Guzzi
    Coordinatrice

  • Sara Pedroni
    Collaboratrice
Via Locatelli, 64 24057 Martinengo (BG)
Zona: Martinengo-Ghisalba
Mostra su mappa
Affiliato
Tecnomartinengo Srl
Via Locatelli, 64 24057 Martinengo (BG)

2026 Tecnocasa Franchising S.p.A. - P. IVA 08365160152 - Via Monte Bianco 60/A 20089 Rozzano (MI). Ogni agenzia ha un proprio titolare ed è autonoma. Privacy policy | Policy utilizzo | Cookie policy