Porzione di bifamiliare in vendita

Ghisalba, Via Roma
€ 199.000
4 locali 4 locali
224 Mq 224 Mq
1 bagno 1 bagno

Porzione di bifamiliare in vendita

Ghisalba, Via Roma

Descrizione annuncio

GHISALBA:

In zona residenziale tranquilla e molto ricercata, a due passi dal centro storico e dal nuovo polo commerciale del paese, proponiamo in vendita porzione di villa bifamiliare al piano primo in un contesto molto riservato.

L’abitazione si distingue per generose metrature, ambienti luminosi e una distribuzione degli spazi funzionale e confortevole.

L’appartamento gode di ottima esposizione, libero a 360 gradi, che garantisce luce naturale durante tutto l’arco della giornata, e della tranquillità tipica di una soluzione in villa, senza spese condominiali.

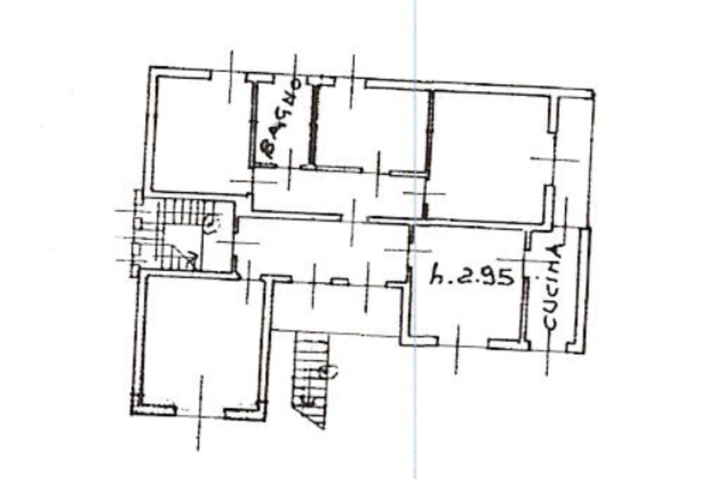
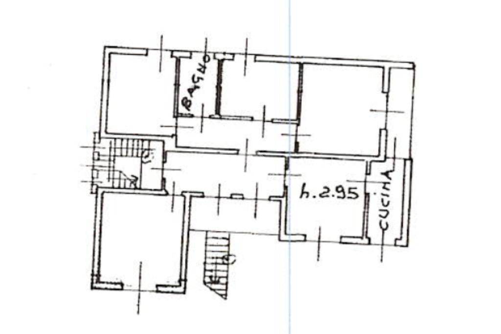
Un’imponente scala frontale ci accompagna all’ingresso della soluzione e ci accoglie un ampio disimpegno arredabile che ci conduce alle varie zone della casa.

La zona giorno è composta da un soggiorno luminoso e spazioso ideale per la vita familiare e per ricevere ospiti; cucina abitabile con comodo vano cottura separato e sala da pranzo.

La zona notte offre tre camere da letto spaziose e ben illuminate, di cui una servita da ampio balcone esposto a sud. Bagno padronale con vasca/doccia.

Completano la proprietà un grande spazio esterno comune all’abitazione sottostante, un’autorimessa singola oltre a locali accessori (lavanderia e ripostiglio esterno) e spazioso sottotetto accessibile tramite scala interna comuni all’abitazione sottostante.

Soluzione ideale per chi cerca ampie dimensioni, indipendenza e comfort, in un contesto residenziale tranquillo e ben servito.

IMMOBILE LIBERO SUBITO!

APE IN FASE DI VERIFICA

POSSIBILITA' DI ACQUISTO TOTALE DELL'IMMOBILE

Mostra tutto

Nelle vicinanze

Trasporto pubblico Trasporto pubblico
Ghisalba - Via Provinciale, 30
Ghisalba - Via Provinciale, 30
230 m
Ghisalba - Via Provinciale, 9
Ghisalba - Via Provinciale, 9
270 m
Scuole Scuole
S.M.S "Cagnola" Ghisalba
260 m
Scuola Elementare C. Cossali
340 m
Farmacia Farmacia
Farmacia
2,9 Km
Supermercati Supermercati
Conad
510 m
Famila
2,4 Km
Bar Bar
Bar
2,3 Km
Ristoranti Ristoranti
Ristoranti
2,3 Km
Agriturismo Sant'Antonio
2,7 Km
Mostra tutto

Caratteristiche

Rif.:
61174936
Piano:
1 di 2 (Piano basso)
Box:
1
Balconi:
1
Terrazzi:
1
Camere da letto:
3
Mostra tutto
Prezzo Prezzo
€ 199.000
Rata mutuo Rata mutuo
€ 949 / mese
Spese annue Spese annue
€ 0
Proponi il tuo prezzoProponi il tuo prezzo

Classe Energetica

Questo immobile è esente da classe energetica
Anno di costruzione:
1968
Riscaldamento:
Autonomo
Tipo impianto:
A radiatori
Tipo alimentazione:
Metano

Ti interessa visionare l'immobile?

Fissa un appuntamento  Fissa un appuntamento

Richiedi informazioni

Clicca su Leggi per aprire l'informativa
* Questi campi sono obbligatori

Calcola il tuo mutuo

Semplice e senza impegno
Anticipo

( % )
Mutuo

( % )

pochi semplici passi

inserisci i tuoi dati
Questionario completato
Grazie per aver richiesto un appuntamento senza impegno con un nostro Consulente del Credito e Assicurativo.

Hai inserito correttamente tutti i dati necessari e a breve riceverai una e-mail con un link da convalidare per inviare i tuoi dati.
Affiliato
Tecnomartinengo Srl
Via Locatelli, 64 24057 Martinengo (BG)

Il nostro staff


  • Cassandra Bianchessi
    Affiliata

  • Eleonora Cristiani
    Responsabile

  • Laura Guzzi
    Coordinatrice

  • Sara Pedroni
    Collaboratrice
Via Locatelli, 64 24057 Martinengo (BG)
Zona: Martinengo-Ghisalba
Mostra su mappa
Affiliato
Tecnomartinengo Srl
Via Locatelli, 64 24057 Martinengo (BG)

2026 Tecnocasa Franchising S.p.A. - P. IVA 08365160152 - Via Monte Bianco 60/A 20089 Rozzano (MI). Ogni agenzia ha un proprio titolare ed è autonoma. Privacy policy | Policy utilizzo | Cookie policy