Casa di corte in vendita

Ghisalba, Via Roma
€ 169.000
4 locali 4 locali
302 Mq 302 Mq
1 bagno 1 bagno

Casa di corte in vendita

Ghisalba, Via Roma

Descrizione annuncio

GHISALBA:

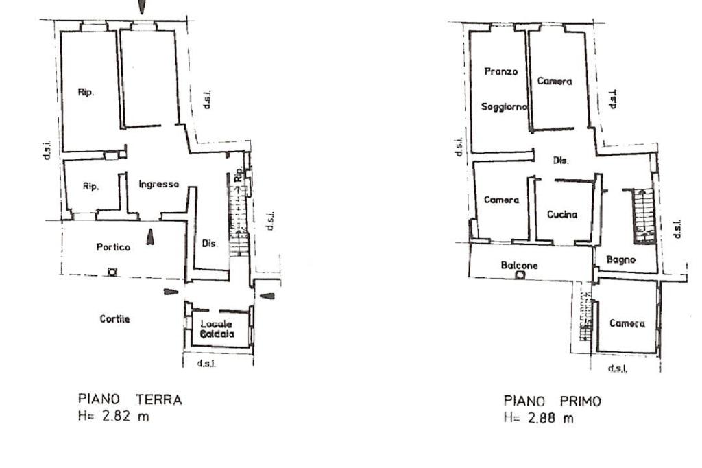
Nel cuore del centro storico, vicino a tutti i servizi principali del paese, proponiamo in vendita una casa totalmente indipendente in corte.

La soluzione si sviluppa su più livelli e gode di ampie metrature. Possibilità di parcheggiare due auto nella corte.

Al piano terra veniamo accolti da un grande disimpegno che ci conduce in tre ampie stanze abidite a locali accessori. Uscita diretta al giardino esclusivo recintato retrostante.

Al piano primo invece si sviluppa la parte abitabile della soluzione dove troviamo una cucina separata con terrazzo, una sala pranzo/soggiorno, due camere da letto matrimoniali e un grande bagno con vasca. Dal terrazzo è possibile accedere ad un ulteriore camera.

Al piano secondo è presente un sottotetto non abitabile che si estende per tutta la metratura della casa.

Nessuna spesa comune e libero subito!

APE IN FASE DI VERIFICA

Mostra tutto

Nelle vicinanze

Trasporto pubblico Trasporto pubblico
Ghisalba - Via Provinciale, 30
Ghisalba - Via Provinciale, 30
230 m
Ghisalba - Via Provinciale, 9
Ghisalba - Via Provinciale, 9
270 m
Scuole Scuole
S.M.S "Cagnola" Ghisalba
260 m
Scuola Elementare C. Cossali
340 m
Farmacia Farmacia
Farmacia
2,9 Km
Supermercati Supermercati
Conad
510 m
Famila
2,4 Km
Bar Bar
Bar
2,3 Km
Ristoranti Ristoranti
Ristoranti
2,3 Km
Agriturismo Sant'Antonio
2,7 Km
Mostra tutto

Caratteristiche

Rif.:
61182875
Piano:
Su più livelli di 2
Totale piani:
2
Terrazzi:
1
Camere da letto:
3
Arredamento:
Parziale
Mostra tutto
Prezzo Prezzo
€ 169.000
Rata mutuo Rata mutuo
€ 806 / mese
Spese annue Spese annue
€ 0
Proponi il tuo prezzoProponi il tuo prezzo
Immobile valutato con T·Valuta

Classe Energetica

G
G
G
G
G
G
G
G
G
Anno di costruzione:
1967
Riscaldamento:
Autonomo
Tipo impianto:
A radiatori
Tipo alimentazione:
Metano

Ti interessa visionare l'immobile?

Fissa un appuntamento  Fissa un appuntamento

Richiedi informazioni

Clicca su Leggi per aprire l'informativa
* Questi campi sono obbligatori

Calcola il tuo mutuo

Semplice e senza impegno
Anticipo

( % )
Mutuo

( % )

pochi semplici passi

inserisci i tuoi dati
Questionario completato
Grazie per aver richiesto un appuntamento senza impegno con un nostro Consulente del Credito e Assicurativo.

Hai inserito correttamente tutti i dati necessari e a breve riceverai una e-mail con un link da convalidare per inviare i tuoi dati.
Affiliato
Tecnomartinengo Srl
Via Locatelli, 64 24057 Martinengo (BG)

Il nostro staff


  • Cassandra Bianchessi
    Affiliata

  • Eleonora Cristiani
    Responsabile

  • Laura Guzzi
    Coordinatrice

  • Sara Pedroni
    Collaboratrice
Via Locatelli, 64 24057 Martinengo (BG)
Zona: Martinengo-Ghisalba
Mostra su mappa
Affiliato
Tecnomartinengo Srl
Via Locatelli, 64 24057 Martinengo (BG)

2026 Tecnocasa Franchising S.p.A. - P. IVA 08365160152 - Via Monte Bianco 60/A 20089 Rozzano (MI). Ogni agenzia ha un proprio titolare ed è autonoma. Privacy policy | Policy utilizzo | Cookie policy